multicultural village
tacoma dome
link extension
yelm highway community park
mason street
acer house
crossroads community center kitchen
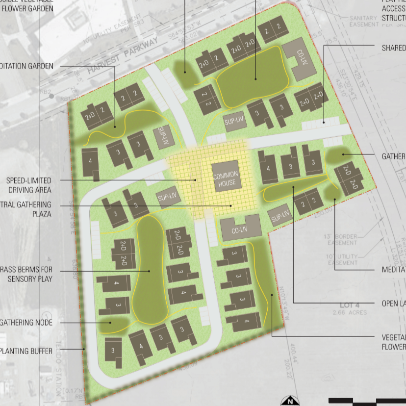
woodland view
odmf family resource center
ohana village
everest park restrooms
poulsbo event and recreation center